
- Місце розташування ділянки будівництва
- Фото сучасного стану ділянки
- Існуючий проект житлового будинку
- ...
1. Місце розташування ділянки будівництва
2. Фото сучасного стану ділянки
3. Існуючий проект житлового будинку

Місце розміщення
Викопіювання - Топозйомка
Фасад 1
Фасад 2
Фасад 3
Фасад 4
Фасад 5
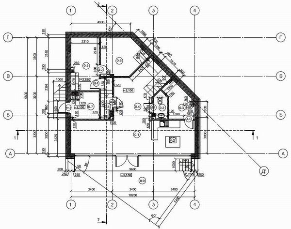
План підвалу
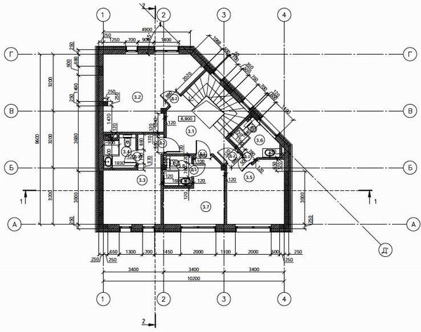
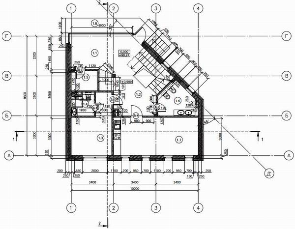
План - Поверх 1
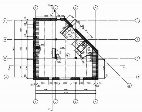
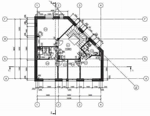
План - Поверх 2
План - Поверх 3
План - Поверх 4 Мансарда
Розріз 1-1
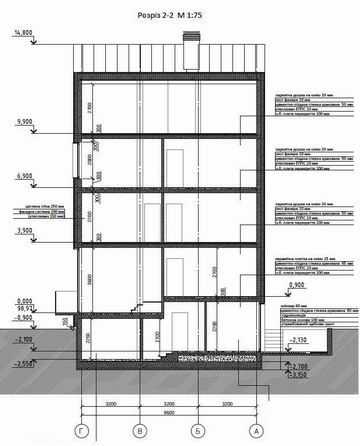
Розріз 2-2
Розгортка
Back to Home